Lot 12 - 39 Rosewood Gardens, Marchwood, Southampton, Hampshire, SO40 4YX

  • Unconditional Online Auction Sale
  • Guide Price* : £90,000 plus
  • Bedrooms: 1

One bedroom first floor maisonette

Description

A one bedroom first floor maisonette situated close to the outskirts of New Forest National Park.

Other Information

Local Authority – New Forest District Council
EPC Rating – C

Tenure

Leasehold

Viewings

Pococks - 023 8086 0555

Lease Start Date

29/09/1984

Lease Duration

99 years (60 years unexpired)

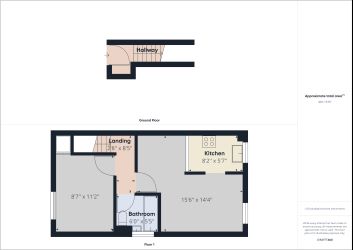
Accommodation

Ground Floor
Entrance lobby, stairs to 1st floor
First Floor
Reception room with archway to kitchen, bedroom, bathroom
Exterior
Car port, garden (overgrown)
Gas Heating
No warranty is given for its working order

Additional Information

A contract administration charge of £1,500 (inclusive of Vat) is payable on exchange of contracts. Please note this fee is not part of the deposit or purchase price.

Please refer to the Special Conditions of Sale & General Conditions of Sale for details of any additional fees, costs or disbursements (if applicable), which will form part of the contract.

*Guide price definition

Guide prices are provided as an indication of the seller’s current minimum acceptable price at auction. They are not necessarily figures that a property will sell for, and may change at any time prior to the auction. The guide price may not be the minimum sale price, which can be higher or lower.

Reserve price definition

The reserve price is the minimum acceptable price under the hammer, which remains confidential, and may change at any time prior to the auction. Unless otherwise stated, each property will be sold subject to a reserve. The reserve is expected to be set no more than 10% above a fixed figure guide price, or within a guide price range.

Loading the bidding panel...

Vendor

the asset managers -

Agreement Documents

Additional Documents

Virtual Tour

View a Virtual Tour

Share