Lot 17 - Apartment 8 Willow Rise, Roughwood Drive, Kirkby, Liverpool, Merseyside, L33 8WZ

  • Unconditional Online Auction Sale
  • Guide Price* : £25,500
  • Bedrooms: 2

Two bedroom first floor apartment

Description

A two bedroom first floor apartment let on an Assured Shorthold Tenancy from 8/10/2021 to 7/10/2022, at a current rent of £395 pcm, thus producing £4,740 per annum. The property is well situated for the local amenities and approximately one mile from Kirkby station.

Other Information

Local Authority – Knowsley Metropolitan Borough Council
EPC Rating – D

Tenure

Leasehold

Tenancy

Tenanted

Viewings

Strictly by prior appointment with the auctioneers

Lease Start Date

10/02/2005

Lease Duration

125 years (107 years unexpired)

Annual Ground Rent

£150 - reviewed every 10 years

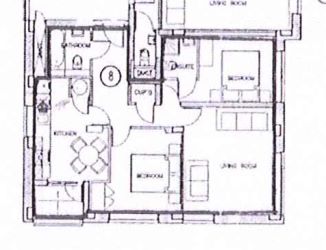
Accommodation

First Floor
Hall, reception room, kitchen, 2 bedrooms (1 with en-suite shower room), bathroom
Exterior
Balcony, allocated parking space
Electric Heating
No warranty is given for its working order

Additional Information

A contract administration charge of £1,500 (inclusive of Vat) is payable on exchange of contracts. Please note this fee is not part of the deposit or purchase price.

Please refer to the Special Conditions of Sale & General Conditions of Sale for details of any additional fees, costs or disbursements (if applicable), which will form part of the contract.

*Guide price definition

Guide prices are provided as an indication of the seller’s current minimum acceptable price at auction. They are not necessarily figures that a property will sell for, and may change at any time prior to the auction. The guide price may not be the minimum sale price, which can be higher or lower.

Reserve price definition

The reserve price is the minimum acceptable price under the hammer, which remains confidential, and may change at any time prior to the auction. Unless otherwise stated, each property will be sold subject to a reserve. The reserve is expected to be set no more than 10% above a fixed figure guide price, or within a guide price range.

Loading the bidding panel...

Agreement Documents

Additional Documents

Share